风力发电机在运行过程中,需要承受来自多个方面的复杂载荷。自身的巨大重量,包括塔筒、机舱、叶片等部件的质量,形成了持续向下的重力作用。而风力作为风机的动力来源,在推动叶片转动的同时,也会对风机产生强大的推力、弯矩以及扭力。风机运行时自身的振动,以及可能遭遇的地震等自然灾害,都会给风机带来额外的作用力。这些载荷倘若不能被有效地承载和分散,风机将面临倾斜、倒塌等严重风险。因此,一个稳固可靠的风机基础,是保障风机安全、稳定运行,实现高效发电的基本前提。

重力式扩展基础是目前国内陆上风电场应用最为广泛的一种基础形式 ,一般通过基础环或预应力锚栓将上部荷载传递给基础。基础底面形状常见的有正方形、六边形、八边形以及圆形,其中圆形和正方形较为常用。这种基础依靠自身的重力来平衡风机所承受的水平荷载和弯矩,结构相对简单,施工技术成熟,适用范围广泛。

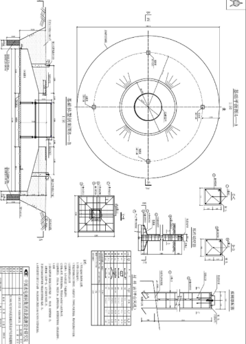
梁板式风机基础由基础台柱、基础底板、从台柱悬挑出的放射状主梁以及封边次梁构成,主梁格间通常用素土夯实,底面一般呈八边形或圆形 。上部荷载经由基础环传递至主梁,再由主梁传递给次梁和地基。相较于重力式扩展基础,梁板式基础的混凝土用量大幅减少,能够在一定程度上改善大体积混凝土因水化热产生温度应力对浇筑造成的不利影响,具有较好的经济性。

桩基础分为单桩基础和多桩基础 。混凝土单桩基础由一个大直径混凝土圆柱组成,受力类似水平桩;多桩基础则依靠群桩和承台共同抵抗倾覆力矩。桩基础具有承载力高、稳定性好、沉降量小且均匀、沉陷速率低且收敛快等优点。由于风电场场址多位于地质条件较差的荒滩、丘岭、沿海滩涂和近海区域,桩基础因此得到了较为广泛的应用。

当地基为承载能力良好的岩石地基时,可采用锚栓式岩石锚杆基础 。这种基础的主体与塔架通过锚栓连接,主体再通过锚杆锚固于基岩之中,充分利用了基岩的承载力,能显著减少基础混凝土和钢筋的工程量,有效降低成本。但该形式对锚栓锚杆的质量要求极高,锚杆的防腐也需要进行专项设计。

风机基础的设计需要综合考虑诸多因素。地质条件是首要考量因素,不同的地质状况,如土壤的类型、承载力、稳定性等,会直接影响基础形式的选择和具体参数的设计。风机的型号和参数也至关重要,包括风机的单机容量、轮毂高度、叶片尺寸、运行荷载等,这些参数决定了基础需要承受的荷载大小和特性。以及当地的气候条件,特别是风荷载和地震荷载的影响。

在设计过程中,要依据相关的设计规范和标准,进行详细的力学计算和分析,确保基础具备足够的强度、刚度和稳定性,以满足风机长期安全运行的需求。

施工前要做好充分的准备工作,包括场地平整、材料准备、施工设备调试等。在施工中,要严格把控每一道工序的质量。例如,在钢筋的加工和安装过程中,要确保钢筋的规格、数量、间距以及连接方式符合设计要求;混凝土的浇筑要保证其密实性,防止出现蜂窝、麻面等质量缺陷;基础环或锚栓的安装要精确控制其位置和垂直度,确保与风机塔筒的连接牢固可靠。

施工完成后,还需要进行一系列的检测和验收工作,如地基承载力检测、基础混凝土强度检测、基础沉降观测等,只有各项检测指标均符合要求,才能确保风机基础的质量。





