4月11日,中国二冶承建的新疆博州博乐市20万kW/80万kWh储能项目正式开工。作为区域重点能源工程是落实国家“双碳”战略、服务新型电力系统建设、推动绿色能源发展的重要举措。建成后将有效提升电网调节与新能源消纳能力,为新疆能源安全稳定供应提供坚实保障。

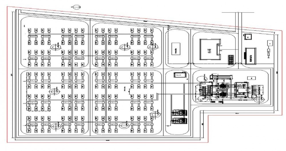
该项目位于新疆博尔塔拉蒙古自治州博乐市,是当地单体规模领先的独立电化学储能项目,建设规模为20万kW/80万kWh。项目主要建设1座110kV升压站,储能机组经升压汇集后,通过2回110kV线路接入皂角树220kV升压汇集站110kV侧实现并网,采用构网型与跟网型技术方案接入区域电网。

博州博乐市20万kW/80万kWh储能项目效果图
项目顺利开工,既是建设单位对公司综合施工实力与品牌信誉的充分认可,也是公司深耕新疆区域市场的重要战略步骤。中国二冶将以高度的责任感与使命感,组建专业高效的项目管理团队,严守安全底线、严把质量关口、严控进度节点,高效解决施工过程中的各类问题,为区域经济社会发展贡献央企力量。





